MIXTE ACTIVITES-BUREAUX

Type :
Bureau
Transaction :
Location
Description :

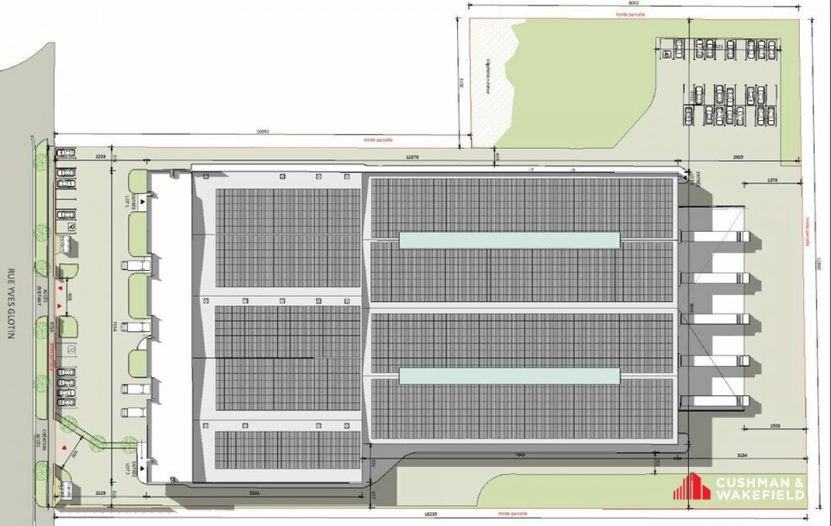
Un espace logistique de 9 632m² divisible et adapté à la distribution du dernier kilomètre situé dans la zone de Bordeaux Nord

Obtention du Label BREEAM RFO Very Good
Hauteur 6,50 m à 7,50 m
Isolation toiture
10 quais PL actuellement
3 quais porteurs existants
5 portes plain-pied
Sol béton + sol en enrobé lourd
Puissance électrique disponible : 600 kVA

La puissance électrique disponible sur site (600 kVA ) permet d'envisager l'installation d'un convoyeur, de cellules à température dirigée, ou des bornes de recharge électrique.

Cahier des charges en fonction des besoins du Preneur

Surface :
9 632 m²
Prix :
963 200 Euros HT / an
Mandat :
3972
Secteur géographique :
Bordeaux

Offre proposée par l'agence CUSHMAN & WAKEFIELD

Adresse :
4 Rue Vauban - 33000 BORDEAUX
Tél :
0556522525

Plate-forme de l'immobilier d'entreprise en Gironde

Optimisez votre recherche immobilière et gagnez en visibilité grâce à ImmoEco. Déposez facilement vos annonces ou faites-nous part de vos projets !

CCI Bordeaux Gironde

17 place de la Bourse, 33076 BORDEAUX Cedex, France.
Du lundi au jeudi de 8h30 à 12h30 et de 13h30 à 17h45.
Le vendredi de 8h30 à 12h30 et de 13h30 à 17h00.

Mentions légales - Contact - Bonnes pratiques

© CCI Bordeaux Gironde - Réalisation Axynet

CCI Bordeaux Gironde

Chambre de Métiers et de l'Artisanat

Gironde Ressources