CARBON-BLANC ? Sur un axe..." />

LOCAL COMMERCIAL

Type :
Local commercial
Transaction :
Location
Description :

CARBON-BLANC ? Sur un axe pénétrant et à proximité immédiate de l'autoroute,

Programme immobilier neuf composé d'un pôle de santé et d'un bâtiment commercial.

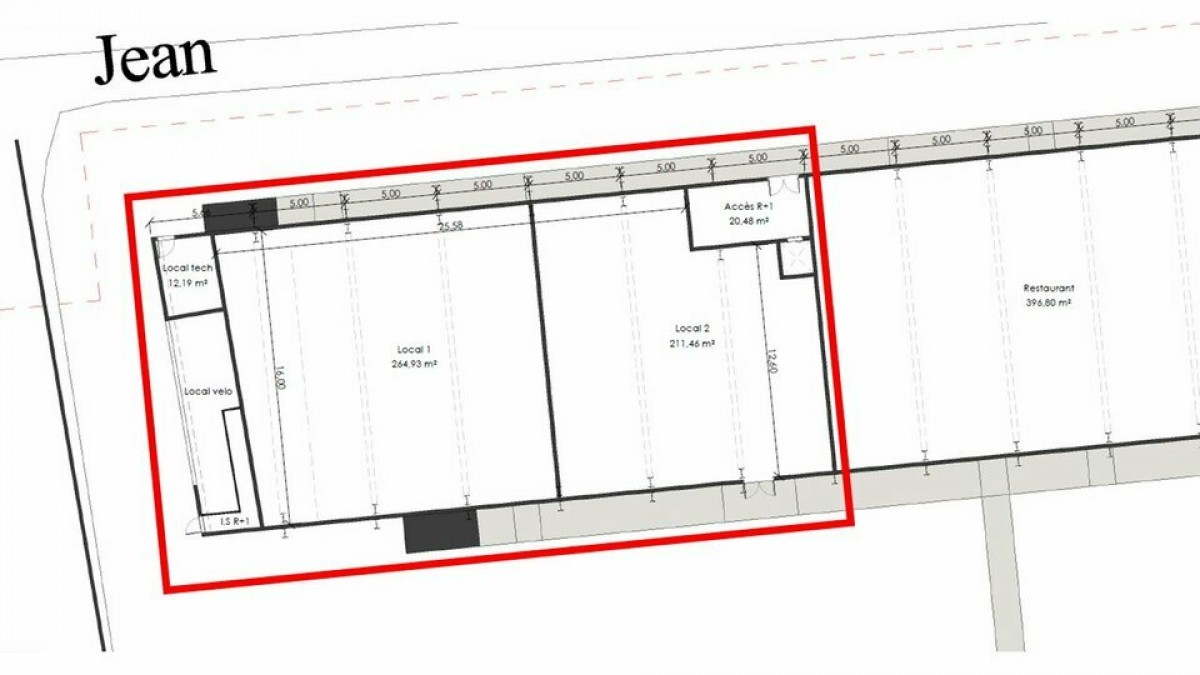
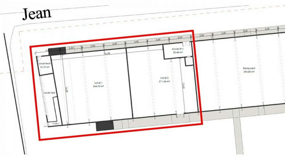
Actuellement disponibles :

  • Cellule de 264m²
  • Cellule de 211m²

Le bâtiment commercial comprend :

  • En rez-de-chaussée : trois cellules commerciales neuves, dont une dédiée à une activité de restauration.

  • À l'étage : une surface commerciale de 980 m², avec une charge au sol de 500 kg/m², accessible par ascenseur et escaliers.

L'ensemble des lots sera livré brut de béton, avec vitrines et menuiseries posées, fluides en attente.

De nombreuses places de stationnement sont prévues sur le site.

Tous commerces sauf restauration dans les 2 cellules restantes

Surface :
476 m²
Prix :
61 880 Euros HTHC / an
Mandat :
4058
Secteur géographique :
Agglomération Rive Droite

Offre proposée par l'agence CUSHMAN & WAKEFIELD

Adresse :
4 Rue Vauban - 33000 BORDEAUX
Tél :
0556522525

Plate-forme de l'immobilier d'entreprise en Gironde

Optimisez votre recherche immobilière et gagnez en visibilité grâce à ImmoEco. Déposez facilement vos annonces ou faites-nous part de vos projets !

CCI Bordeaux Gironde

17 place de la Bourse, 33076 BORDEAUX Cedex, France.
Du lundi au jeudi de 8h30 à 12h30 et de 13h30 à 17h45.
Le vendredi de 8h30 à 12h30 et de 13h30 à 17h00.

Mentions légales - Contact - Bonnes pratiques

© CCI Bordeaux Gironde - Réalisation Axynet

CCI Bordeaux Gironde

Chambre de Métiers et de l'Artisanat

Gironde Ressources